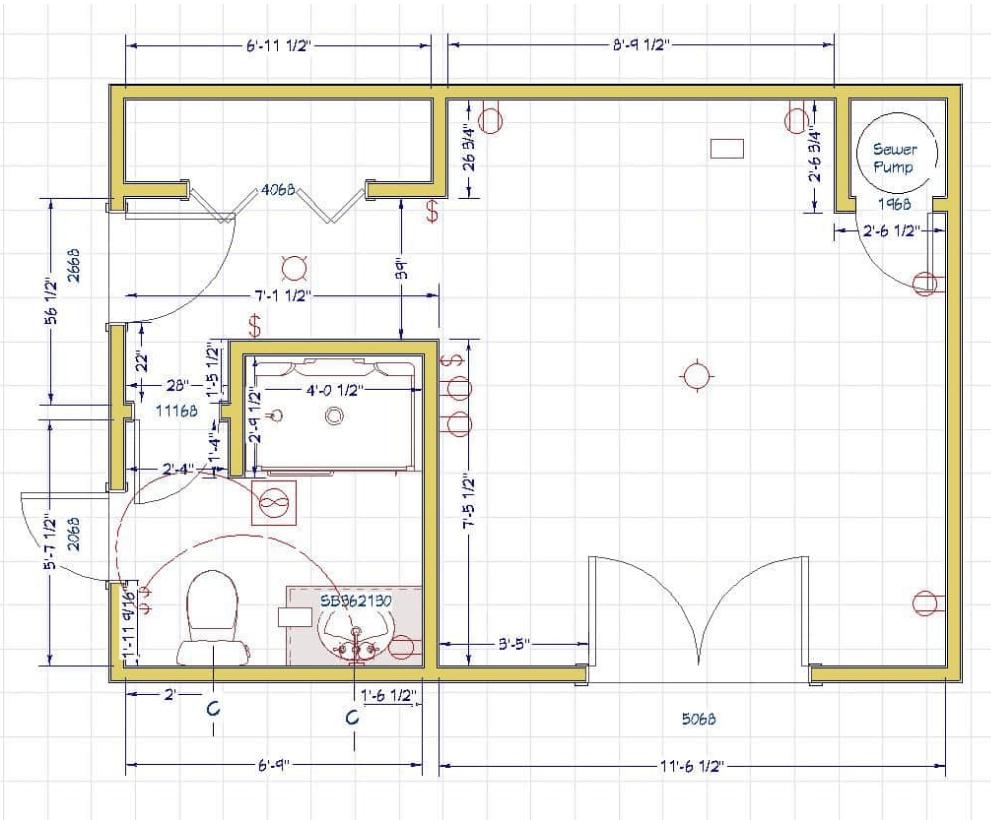
Accessible Bathroom
Accessible Bathroom
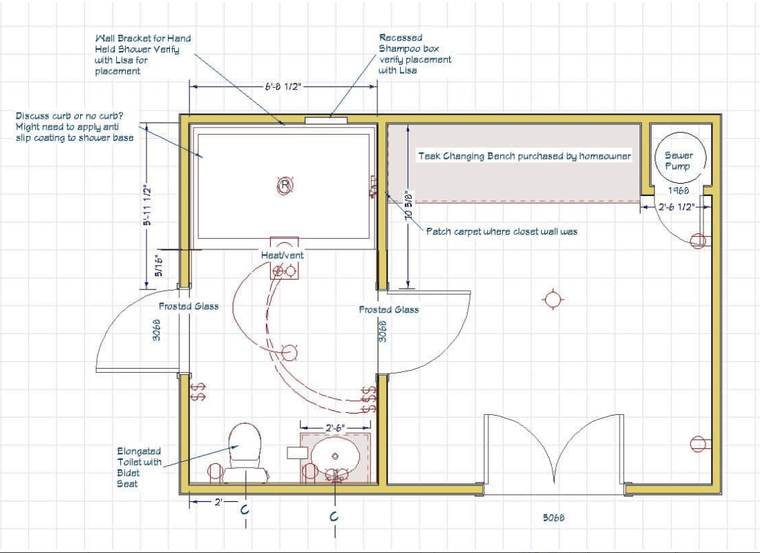
Three narrow doorways, an unused closet, and an inaccessible shower were removed to gain a spacious, beautiful bathroom with a walk-in shower. Onyx shower base and tile walls with improved lighting, wider doors, and non-slip floor tile make for a safe showering experience.
After
Button Related Projects
Related Projects








