Lea Master and Hall Bath
Lea Master and Hall Bath
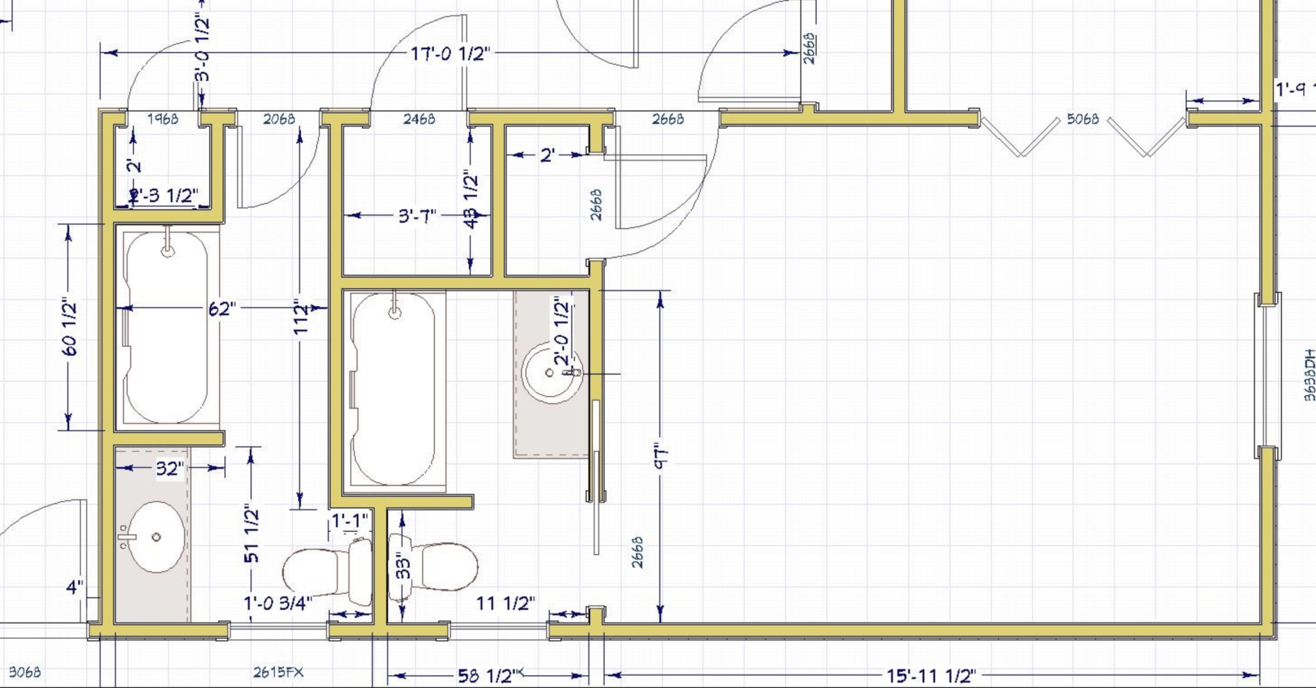
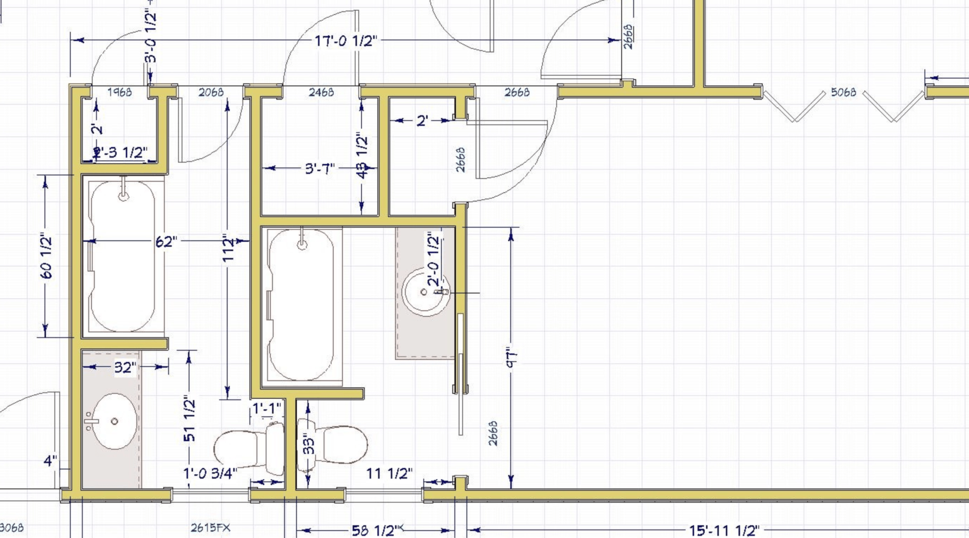
Master Bath
Master Bath
The arrangement of the space changed by removing 2 small closets and an offset. A large steam shower and spacious double sinks with medicine cabinets now occupy this master bath.
Hall Bath
Hall Bath
Rearranging this hall bath with the window incorporated into tub/shower and installing a wall hung vanity, allows natural light and a more spacious layout.
Related Projects
Related Projects















