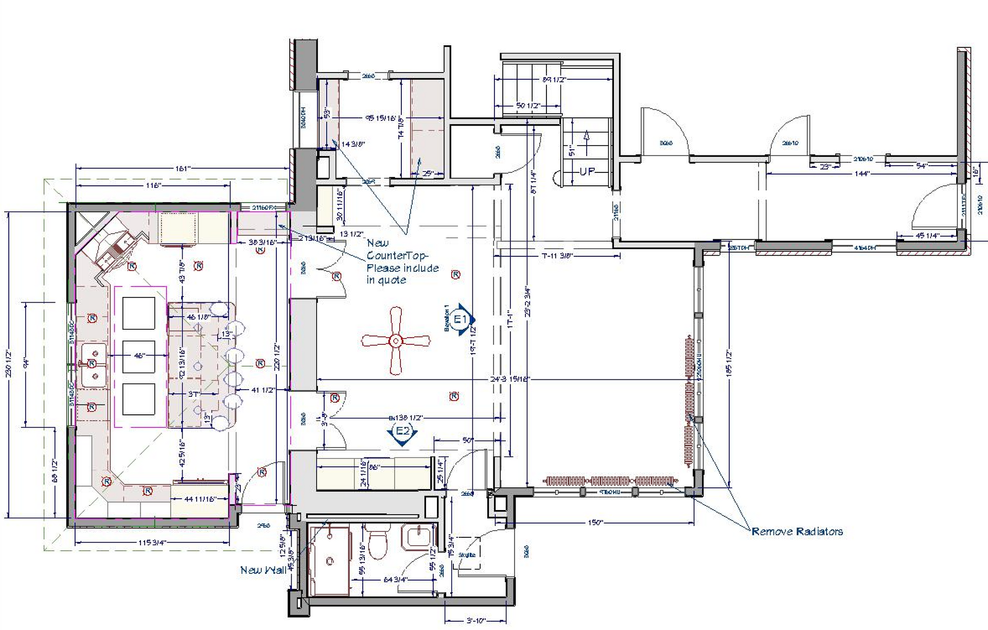
Barnes Kitchen
Jay and Jane were ready to update their home to better accommodate their family of six. We updated the kitchen, turned the Butler’s pantry into a homework station, a drop zone by the door for coats and shoes, and built a new bathroom to provide easy access from the outdoor pool.













