Gordon Laundry
Gordon Laundry
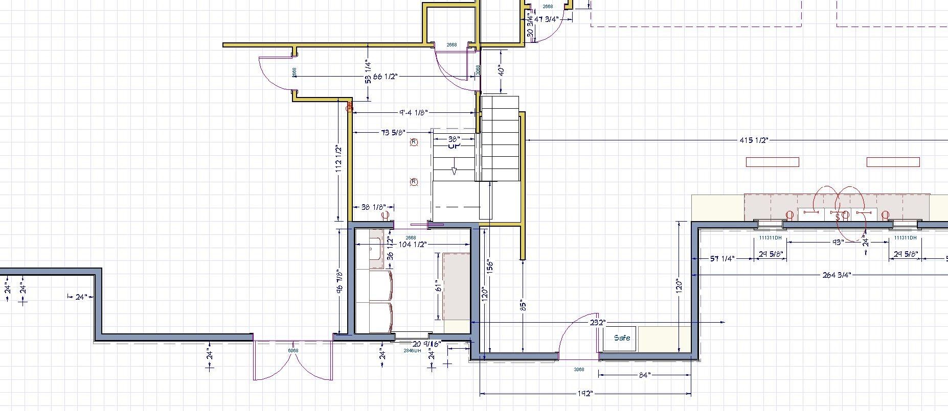
The homeowners needed direct access to the bonus room above the garage without walking through the garage. Using the existing laundry room as a space to turn the stairway and create a landing provided direct access to the bonus room from the interior of the home. An addition was then created to provide a new space for the laundry area.
Related Addition Projects
Related Addition Projects






