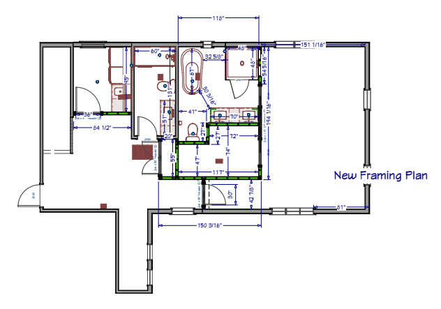
Bill Master and Hall Bathroom
Bob and Ann Bill, originally from Northern California, purchased a Mid-Century home in Columbia that needed a few personal updates. The renovations included relocating the laundry room to an underused space on the second floor, updating the powder room and hall bathroom, and creating a more spacious master suite with a larger bathroom and walk-in closet.

















