Laughlin Kitchen
Laughlin Kitchen
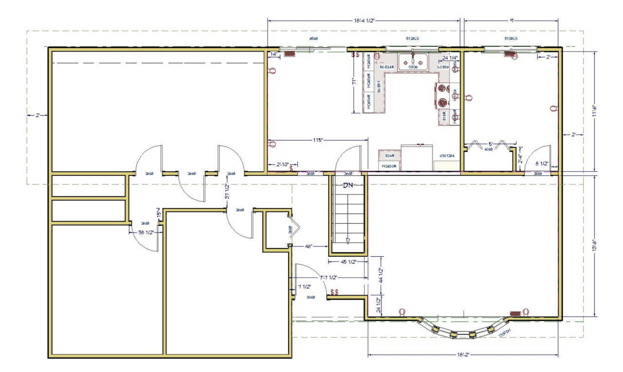
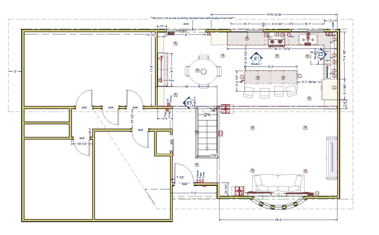
The existing kitchen space was dark and isolated. Chris and Rick Laughlin were ready to take down the dividing walls to create an open floorplan with a large kitchen and eat-in dining space. The walls that surrounded the stairway were also removed and aluminum railing added.
















