Baer Kitchen
Baer Kitchen
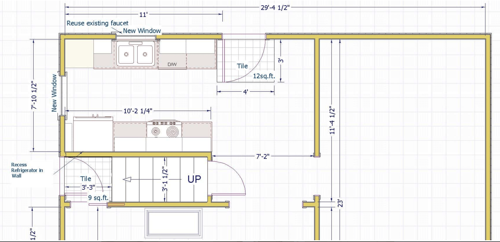
Increased storage & counterspace was needed in this kitchen. A brick flue robbed the kitchen of valuable counterspace. By removing the flue and the wall between the kitchen & back door entry the space became more integrated with the rest of the home.
The stair way entrance was sealed up from the kitchen and access was added from the living room. This gained wall space for the refrigerator & pantry. New cabinetry with Maple butcher block tops and an apron front undermount sink were installed. The existing hard wood floors were patched, sanded & refinished.













