Lea Kitchen
Lea Kitchen
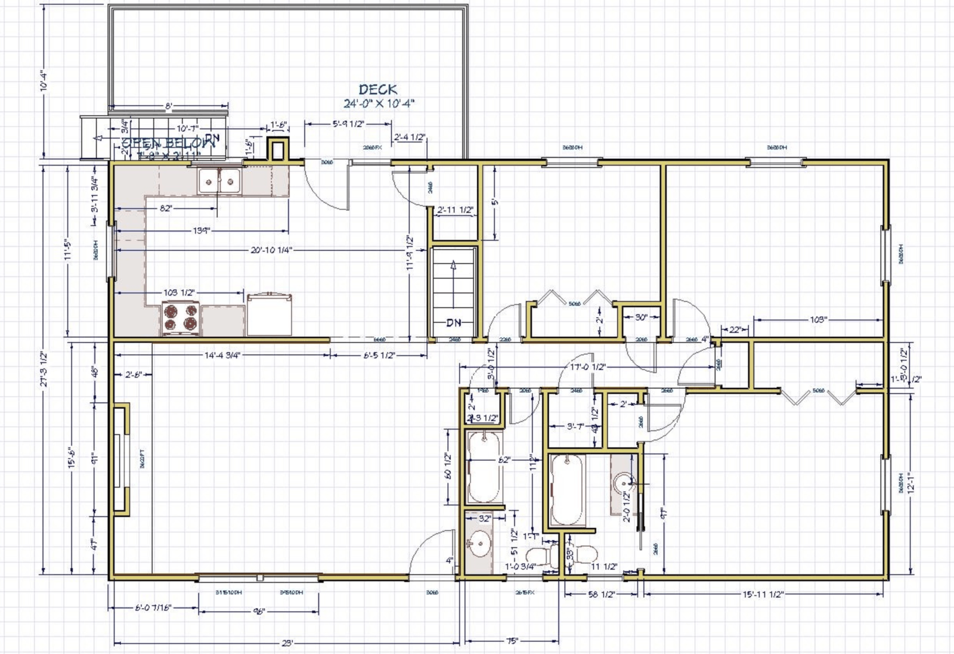
The existing kitchen was isolated from the living space with an inefficient layout and limited counterspace. The wall between the living room & kitchen was removed, the ceiling in the living room was vaulted, 2 skylights added and a 4 panel sliding door added. A large island with seating was created and auxiliary seating was also to the stairway wall that was lowered.














