Bramon Deck
Bramon Deck
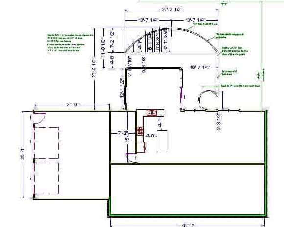
After a sunroom renovation, the Bramons wanted to add space to their existing deck. The prior deck had a step down from the sunroom onto the deck. By elevating the surface, the transition was less of a fall hazard. The new design would wrap around the entire sunroom on all sides.
Along with the enlarged size, the addition of slate tiles created a waterproof surface for the area below the deck. The final element of a spiral staircase not only conserved space but created a pleasing design element.









