Zachers Basement
Zachers Basement
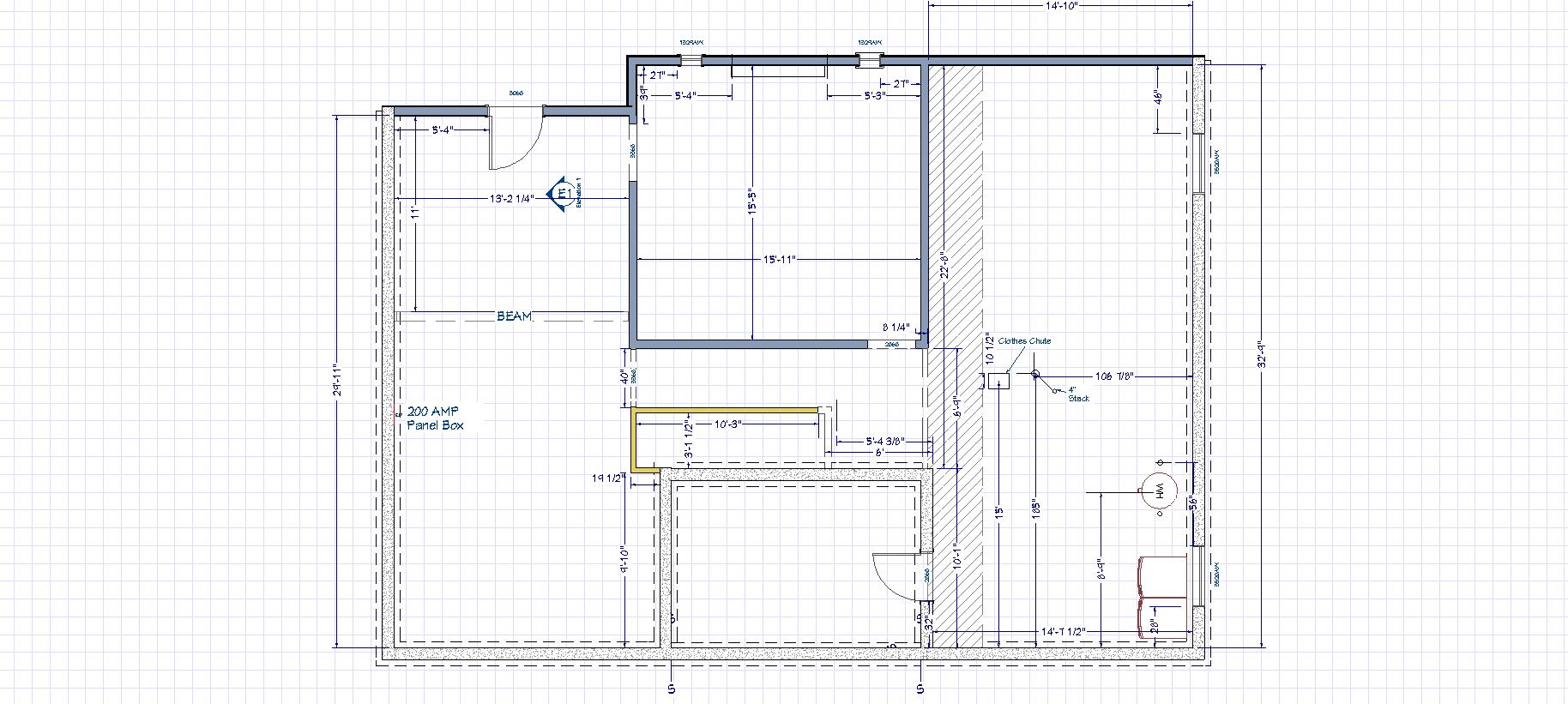
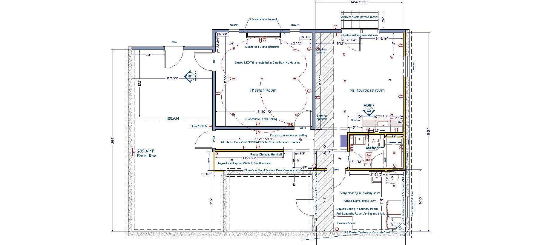
After owning their home for 27 years, the Zachers felt it was time for a change. With both starting retirement, they wanted more space for privacy and separate quiet space. The existing footprint lended to the changes made to finish the previous unfinished basement space. With future plans to remodel kitchen, the new space will enable the Zachers to have a kitchen space while the new construction is underway. Fluid scheduling made the project run seamless to finish within 3 months of starting.
Related Projects
Related Projects















