Lake Champetra Kitchen
Lake Champetra Kitchen
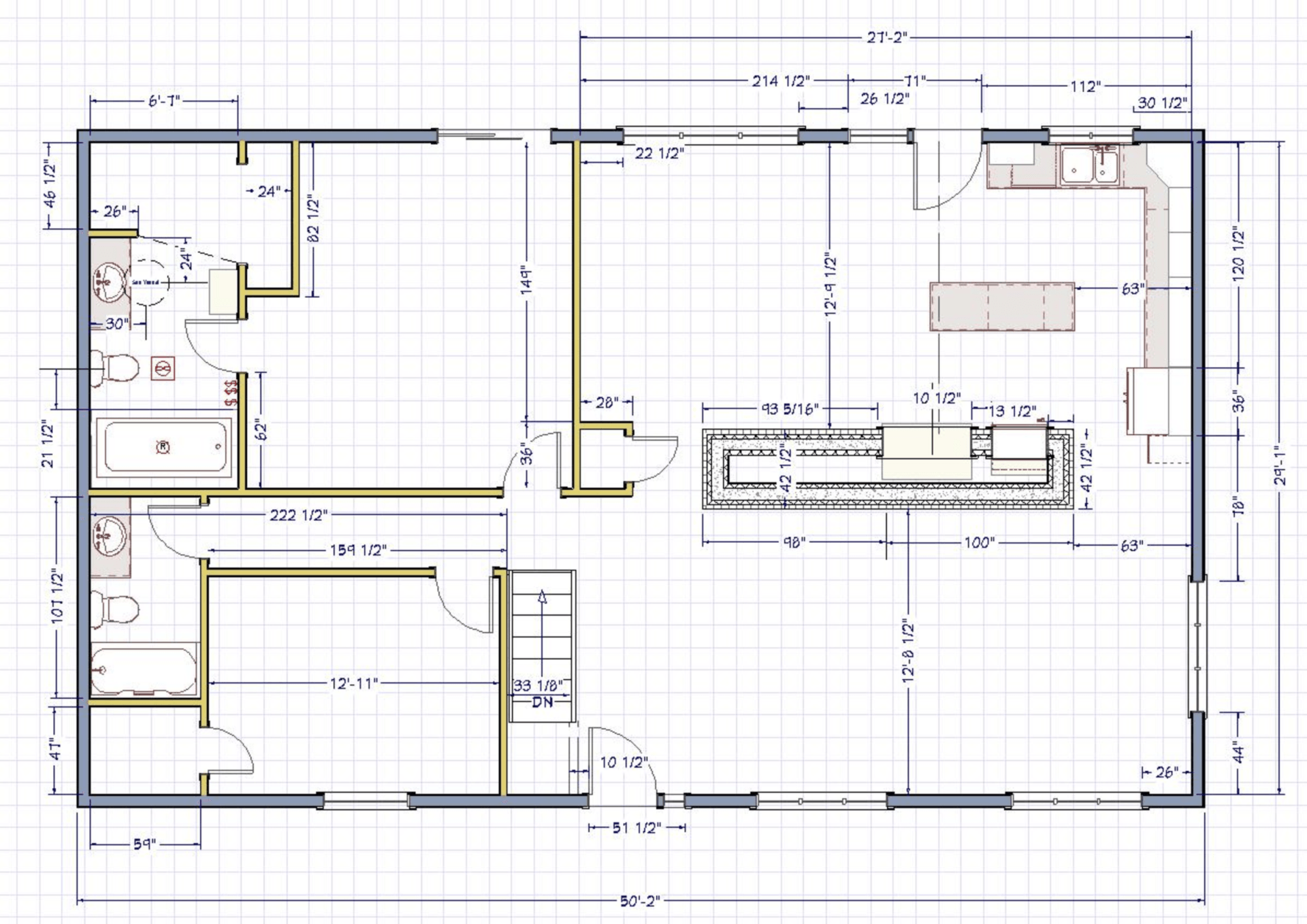
Our house on a small lake between Columbia and Jefferson City was constructed in the mid ‘80s and had been renovated a number of times. The house was badly in need of an update and a reconfiguration of the main floor. We entertain family and friends all summer long and needed smart, easy solutions for heavy traffic flow.













