Beamer Kitchen
Beamer Kitchen
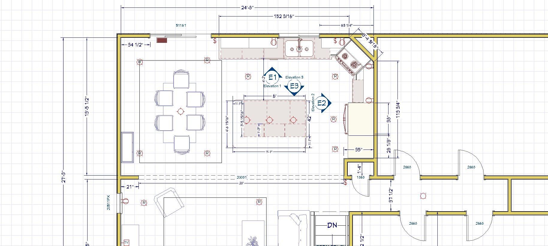
The existing kitchen was dark & dated, separated from the living & dining room. 2 walls were removed to gain space for a large island and dining table. The addition of 2 windows on each side of the tv fill the living room with natural light. The oyster color cabinets are topped with granite countertops. New hardwood flooring was installed throughout the new space as well as down the stairs and down the hallway.



















