Hickey Kitchen
Hickey Kitchen
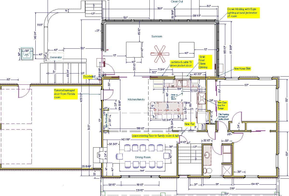
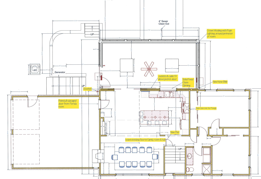
John and Julie Hickey love to entertain their family and friends, but the layout of their house made it challenging. With the expertise of designer Angela Holloway and Kerry Bramon Remodeling and Design, the Hickeys’ home can now accommodate everyone comfortably. KBRD renovated the kitchen, dining and family room, creating a new traffic flow and incorporating space for a very large dining table. The oversized kitchen island is a perfect gathering place for family and friends, and can also provide additional seating for the family’s large get-togethers. The wood-plank vinyl floor is warmer than tile, softer than hardwood, and blends the three rooms together.
TThe remodel also included finishing out a sun porch previously used for storage. It is now a fully functional family room that serves as the new entrance to the kitchen/dining area.














