Roberts Outdoor Kitchen
Roberts Outdoor Kitchen
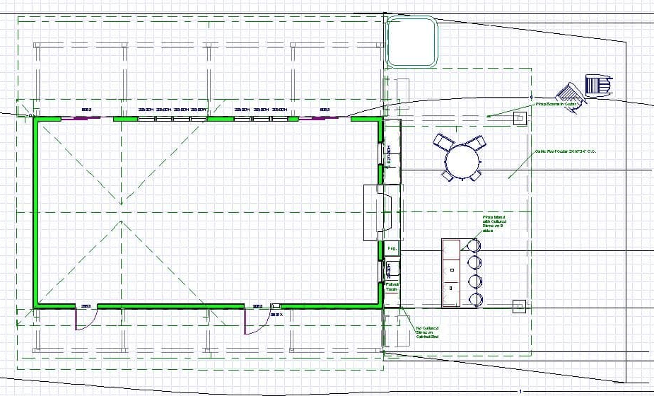
The new addition to the Roberts residence has allowed the couple to enjoy hosting parties and gatherings for their friends and family. Their extra outdoor space, which was comparable to adding another whole room to their quaint cabin, has been the perfect way to entertain and spend time with those they love.
Jonathan and Sangeeta Roberts, professionals with very busy schedules, were given plenty of advance notice to make confident decisions about material selections and budget issues.
Sangeeta described the KBRD team as professional and courteous. Above all, they were open to ideas and suggestions, whether it was stones to put on the pillars or which roofer to hire to match the roofing. Any changes to the original proposal were drawn up so the Roberts could see exactly how their idea would affect the bottom line. Sangeeta said that Kerry and Angela presented all alternative suggestions in a way that allowed for some flexibility within the design but also did not exceed the budget that had been discussed.












