Fotsch Bath
Fotsch Bath
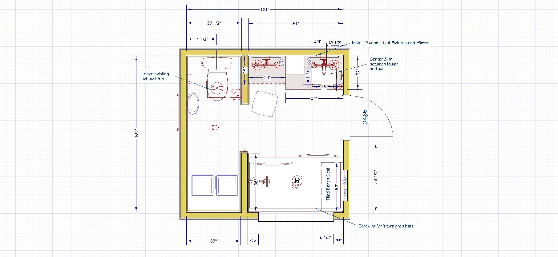
The existing 5' jetted tub occupied valuable space for a potential walk-in shower. The current shower was a small 3'x3' stall. Once the 5' tub was removed, a spacious custom tile shower was installed. The window was replaced with a vinyl fixed frosted glass unit. The vanity cabinets changed to a Birch wood with a Chestnut stain. The lowered makeup counter took the place of one sink. The new counters are Carrara Mist polished quartz and the new flooring is CoreTec Rainer Oak color.












