Weller Master Bath
Weller Master Bath
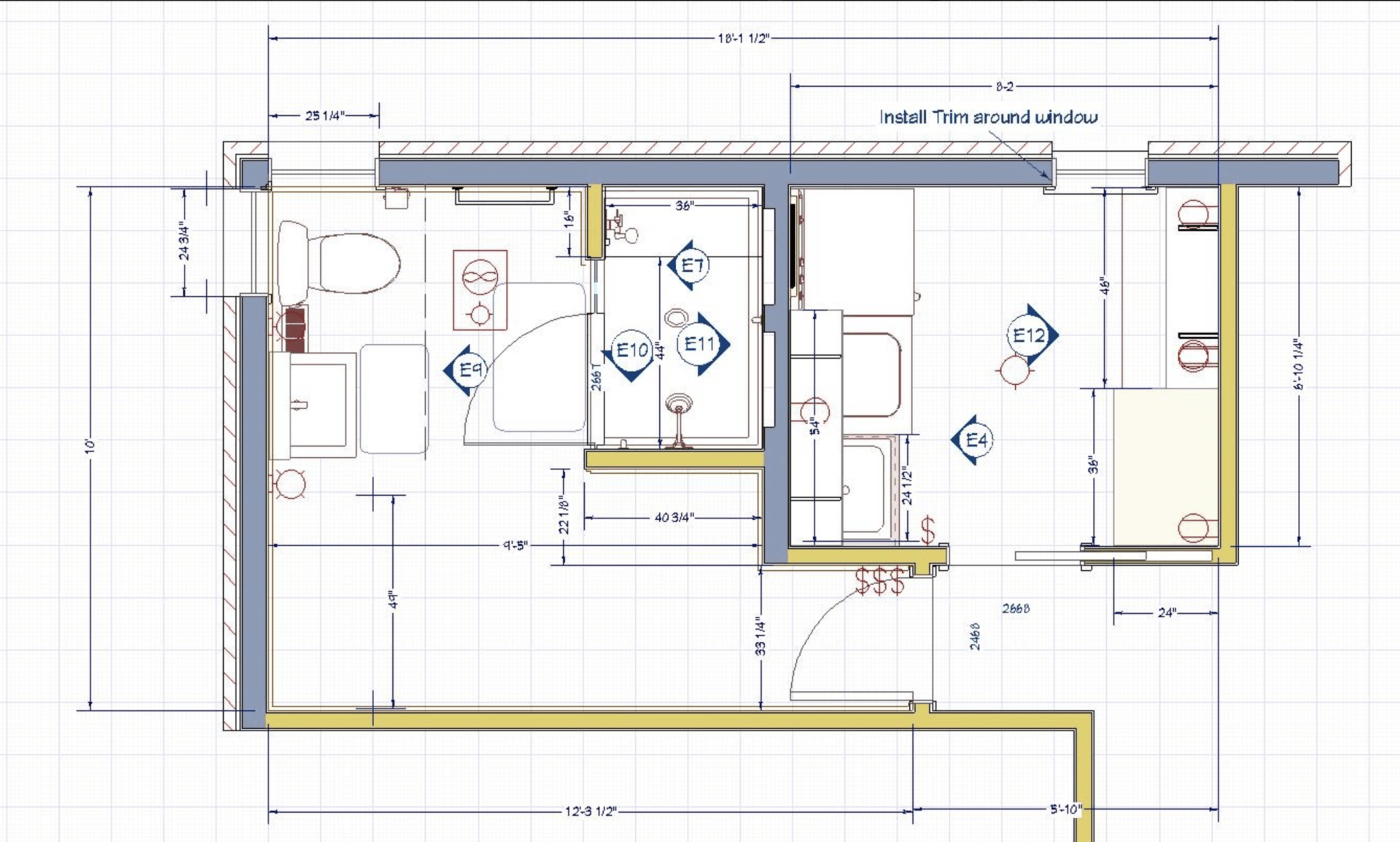
Our homeowner was ready to eliminate her unused 6' pedestal tub and build a safe walk-in shower. She also needed to get her laundry room out of the basement and onto the main level. It was becoming arduous and dangerous climbing a flight of stairs to do her laundry. The new walkin shower is a custom onyx base and walls with a decorative tile border complete with 2 separate valve controls for each shower head. Luxury vinyl plank flooring is in the bathroom and laundry room.


















